ReRender

Casa Unifamiliar,
Contemporáneo Voladizo
Original
Source Image
Subida
Generada(1088x768)
source
2.86%
Result Images
Result Images
Result Images

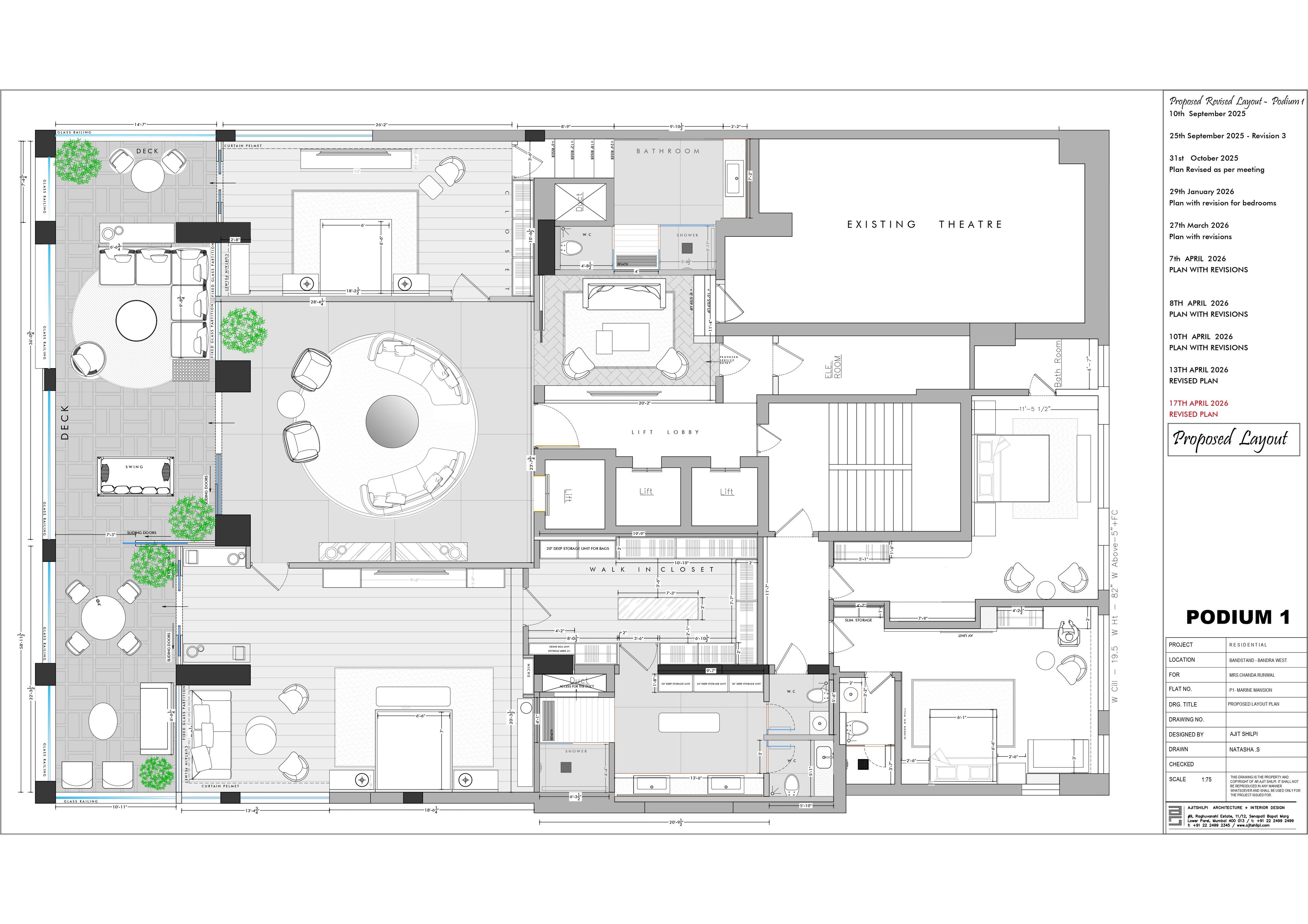
An incredibly lifelike, richly detailed, photorealistic floorplan photo of a spacious, contemporary single-family home situated on a cantilevered structure. The scene is illuminated by a soft, ambient evening light, casting subtle shadows and creating a serene atmosphere. Captured with a bird's-eye perspective, the image showcases the meticulously planned layout, highlighting distinct zones for living, dining, and relaxation. The extensive outdoor deck areas, laid with what appears to be premium stone tiling, feature elegant outdoor furniture arrangements, including a large circular sofa and intimate seating groups. Inside, the floorplan reveals sleek, modern interiors with clearly defined rooms, including bedrooms with walk-in closets, well-appointed bathrooms, and a central lift lobby. The architectural style is distinctly cantilevered and contemporary, suggesting a building that extends boldly over its surroundings. The clarity of the lines and the precise rendering of dimensions evoke a sense of meticulous design and construction, as if this were an actual aerial photograph taken on a clear spring evening.


Use the extensionSketchUp
Follow usInstagramYouTubeLinkedIn
Join the discussionReddit