ReRender

Casa de Campo,
Alta Tecnología

Equilibrado

Original
Source Image
Subida
Generada(768x1064)
source
3.40%
Result Images
Result Images
Result Images
Mostrar más

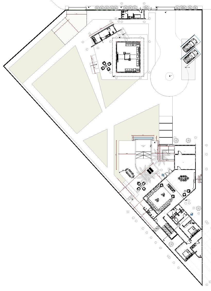
An incredibly lifelike, richly detailed, photorealistic aerial shot of a modern architectural site plan, presented as a high-resolution, 2D visualization. The scene is illuminated by soft, diffused overhead lighting, creating a clean, professional, and inviting atmosphere. Captured with a wide-angle lens, emphasizing the crisp outlines of the modern minimalist design, the rendering showcases diverse textures: lush green grass juxtaposed with smooth concrete pavement, all rendered with sharp detail. Strategically placed trees add depth and natural elements, their subtle shadows casting across the landscape, hinting at a warm, sunny day. The buildings, highlighted in white with soft drop shadows, stand out against the textured ground, their clean lines and minimalist style contributing to a sense of sophisticated elegance. The overall composition is balanced, with clear delineations between outdoor spaces and interior layouts, offering a portfolio-quality glimpse into a thoughtfully designed modern farmstead with high-tech undertones.


Use the extensionSketchUp
Follow usInstagramYouTubeLinkedIn
Join the discussionReddit