ReRender

Casa Unifamiliar,
Contemporáneo Voladizo
Original
Source Image
Subida
Generada(1088x768)
source
0.33%
Result Images
Result Images
Result Images

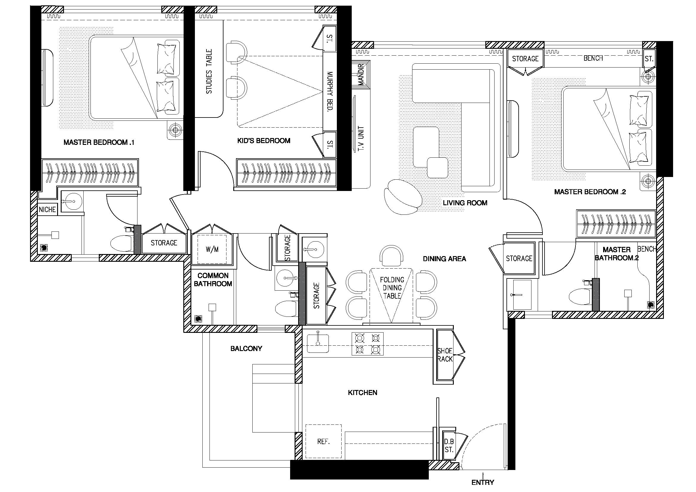
An incredibly lifelike, richly detailed, photorealistic floorplan photo of a contemporary single-family home with a cantilevered design. The scene is illuminated by clean, architectural lighting, creating a bright and inviting atmosphere. Captured with a wide-angle lens, emphasizing the spaciousness and modern aesthetic. The main living areas and bedrooms feature elegant badge tile flooring with visible joint lines, conveying a sense of quality and durability. In stark contrast, all bathroom floors are rendered in pristine white marble, offering a luxurious and pristine finish. The floorplan meticulously outlines the layout, showcasing distinct zones for living, dining, and sleeping, with clear indications of storage, kitchen appliances, and bathroom fixtures. The minimalist style allows the architectural form and material choices to take center stage.


Use the extensionSketchUp
Follow usInstagramYouTubeLinkedIn
Join the discussionReddit