ReRender

Casa Unifamiliar,
Ecológico y Sostenible
Original
Source Image
Subida
Generada(1400x768)
source
0.32%
Result Images
Result Images
Result Images
Mostrar más

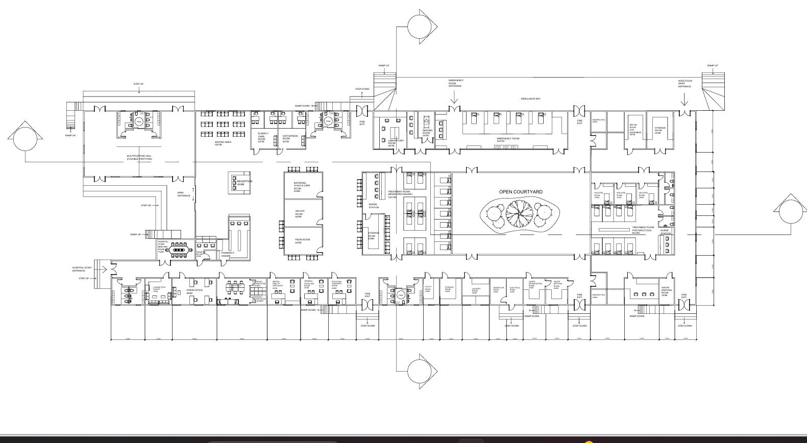
An unrendered, architectural floor plan photograph showcasing a community health hub. The overhead lighting suggests midday, casting a neutral glow across the blueprint. The layout emphasizes an eco-friendly, sustainable design with clearly delineated zones for various services. Identifiable materials are represented through line work and symbols, indicating walls, doorways, and designated spaces within the structure. The composition is a top-down view, offering a comprehensive overview of the hub's layout, with arrows indicating entrances and stairwells. The overall impression is one of functional clarity, highlighting the planned efficient use of space within the single-family home-style accessible health hub.


Use the extensionSketchUp
Follow usInstagramYouTubeLinkedIn
Join the discussionReddit