ReRender

Casa Unifamiliar,
Alta Tecnología
Original
Source Image
Subida
Generada(1312x768)
source
4.98%
Result Images

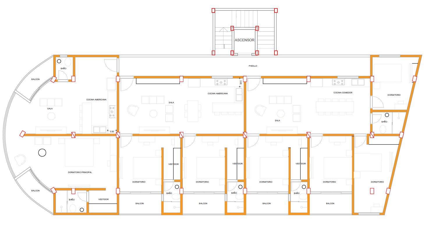
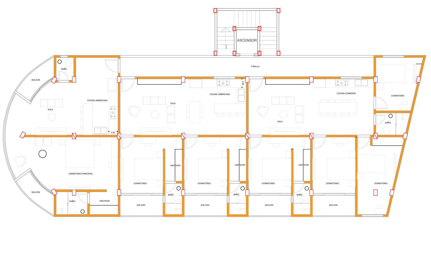
An incredibly lifelike, richly detailed, photorealistic aerial shot of a modern single-family home floor plan, bathed in bright, even illumination that highlights every architectural detail. This high-tech dwelling is laid out efficiently, showcasing clean lines and smart design. The prominent orange outlines of the interior walls and doorways pop against the crisp white of the floor, suggesting a minimalist and sophisticated aesthetic. Within the spaces, subtle representations of furniture – clean-lined sofas in the living areas ("SALA"), kitchen and dining setups ("COCINA AMERICANA," "COCINA COMEDOR"), and beds in the bedrooms ("DORMITORIO PRINCIPAL," "DORMITORIO") – hint at a contemporary and functional living environment. The curved exterior wall, featuring a "BALCON," adds a unique architectural flair, while the inclusion of a stairwell and elevator ("ASCENSOR") package implies a focus on accessibility and modern convenience. The overall impression is one of precision, clarity, and cutting-edge design, as if viewing an architectural model from directly above.


Use the extensionSketchUp
Follow usInstagramYouTubeLinkedIn
Join the discussionReddit